La Residenza Le Viole è l’ultima e più moderna realizzazione che completa il prestigioso Complesso Residenziale dei Fiori. Situata in una posizione strategica, tra Via Marsala e Via Pacinotti, la residenza gode di una vicinanza invidiabile al centro città, alla stazione ferroviaria e ai principali collegamenti stradali, offrendo il perfetto equilibrio tra comodità e tranquillità. L’edificio si sviluppa su otto piani fuori terra, con un ulteriore piano interrato dedicato alle autorimesse e ospita 47 unità abitative progettate per soddisfare ogni esigenza: dai bilocali fino agli attici quadrilocali con soppalco, pensati per chi cerca spazi ampi, luminosi e di pregio. Ogni appartamento, che viene consegnato completamente imbiancato, è stato studiato per garantire il massimo comfort abitativo e propone finiture di alta qualità: pavimenti in parquet prefinito in rovere o gres porcellanato, porte interne con maniglie in alluminio e portoncini blindati classe 4 ad alte prestazioni termiche e acustiche. La tecnologia è protagonista: il sistema centralizzato di riscaldamento e raffrescamento con gestione autonoma garantisce efficienza e risparmio, grazie anche al riscaldamento a pavimento e ai split idronici per la climatizzazione. Ogni unità è dotata di ventilazione meccanica controllata con recupero di calore, mentre l’impianto elettrico Living Light Bticino è predisposto per la domotica di livello 1 con videocitofono a colori e modulo gateway. È inoltre prevista la predisposizione per impianto d’allarme volumetrico e perimetrale. Gli spazi esterni non sono da meno: balconi e logge con parapetti in vetro, pavimentazioni di tipo galleggiante ad effetto pietra e presa d’acqua dedicata; giardini privati con irrigazione automatica, prato seminato e siepi divisorie, perfetti per vivere all’aria aperta in un contesto riservato. Le autorimesse, infine, sono dotate di illuminazione a LED temporizzata, presa dedicata per la ricarica di auto elettriche e basculanti in lamiera zincata. Il tutto in un edificio di classe energetica A4, con pannelli fotovoltaici e solare termico per la produzione di energia e acqua calda, serramenti in alluminio a taglio termico e frangisole motorizzati, a garanzia di un comfort sostenibile e di lunga durata.
Ascensore, Portineria, Cantina, Giardino di proprietà, Giardino condominiale, Condizionatore, Predisposizione condizionatore, Predisposizione allarme
Classe A4 Ipe 3,51 KWh/m²a
Prestazione energetica del fabbricato inverno estate

La Residenza Le Viole è l’ultima e più moderna realizzazione che completa il prestigioso Complesso Residenziale dei Fiori. Situata in una posizione strategica, tra Via Marsala e Via Pacinotti, la residenza gode di una vicinanza invidiabile al centro città, alla stazione ferroviaria e ai principali collegamenti stradali, offrendo il perfetto equilibrio tra comodità e tranquillità. L’edificio si sviluppa su otto piani fuori terra, con un ulteriore piano interrato dedicato alle autorimesse e ospita 47 unità abitative progettate per soddisfare ogni esigenza: dai bilocali fino agli attici quadrilocali con soppalco, pensati per chi cerca spazi ampi, luminosi e di pregio. Ogni appartamento, che viene consegnato completamente imbiancato, è stato studiato per garantire il massimo comfort abitativo e propone finiture di alta qualità: pavimenti in parquet prefinito in rovere o gres porcellanato, porte interne con maniglie in alluminio e portoncini blindati classe 4 ad alte prestazioni termiche e acustiche. La tecnologia è protagonista: il sistema centralizzato di riscaldamento e raffrescamento con gestione autonoma garantisce efficienza e risparmio, grazie anche al riscaldamento a pavimento e ai split idronici per la climatizzazione. Ogni unità è dotata di ventilazione meccanica controllata con recupero di calore, mentre l’impianto elettrico Living Light Bticino è predisposto per la domotica di livello 1 con videocitofono a colori e modulo gateway. È inoltre prevista la predisposizione per impianto d’allarme volumetrico e perimetrale. Gli spazi esterni non sono da meno: balconi e logge con parapetti in vetro, pavimentazioni di tipo galleggiante ad effetto pietra e presa d’acqua dedicata; giardini privati con irrigazione automatica, prato seminato e siepi divisorie, perfetti per vivere all’aria aperta in un contesto riservato. Le autorimesse, infine, sono dotate di illuminazione a LED temporizzata, presa dedicata per la ricarica di auto elettriche e basculanti in lamiera zincata. Il tutto in un edificio di classe energetica A4, con pannelli fotovoltaici e solare termico per la produzione di energia e acqua calda, serramenti in alluminio a taglio termico e frangisole motorizzati, a garanzia di un comfort sostenibile e di lunga durata.
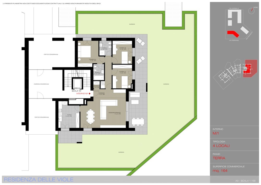
Riferimento: M-1
Tipologia: Appartamento
Comune: Monza
Zona: San Carlo
Cucina: Cucina abitabile
Bagni: 2
Camere: 3
Box: Nessuno
Piano: Terra di 7
Anno costruzione: 2025
Stato conservazione: Nuovo
Stato: In costruzione
Spese cond. annue €:
Riscaldamento: Centralizzato gest. autonoma
Ascensore, Portineria, Cantina, Giardino di proprietà, Giardino condominiale, Condizionatore, Predisposizione condizionatore, Predisposizione allarme
Efficienza energetica
Classe A4 Ipe 3,51 KWh/m²a
Prestazione energetica del fabbricato inverno estate